⚡ Storm hit your roof? Don't wait — call us now: 770-868-8448
🏅 Verified Credentials

Licensed. Insured.
Certified.

Hiring a roofing contractor is a big decision. Here's our full paper trail — every license, certification, and policy we carry, so you can hire with total confidence.

Our Credentials
Every Certificate.
Every License. On File.

We're fully licensed by the state of Georgia, insured for general liability and workers' compensation, and certified by the top names in roofing. Click any document to view it full size.

2026 Georgia Business License 🔍 View full size
✅ Active 2026
2026 Georgia Business License

Barrow County business license #678 for Sycon Restoration LLC — 557 Manning Gin Rd, Monroe, GA 30656. Valid through 12/31/2026.

General Liability Insurance 🔍 View full size
🛡️ $2M Coverage
General Liability Insurance

Commercial general liability through Nautilus (Policy NN1912139). $1M per occurrence, $2M aggregate. Coverage 10/25/2025 – 10/25/2026.

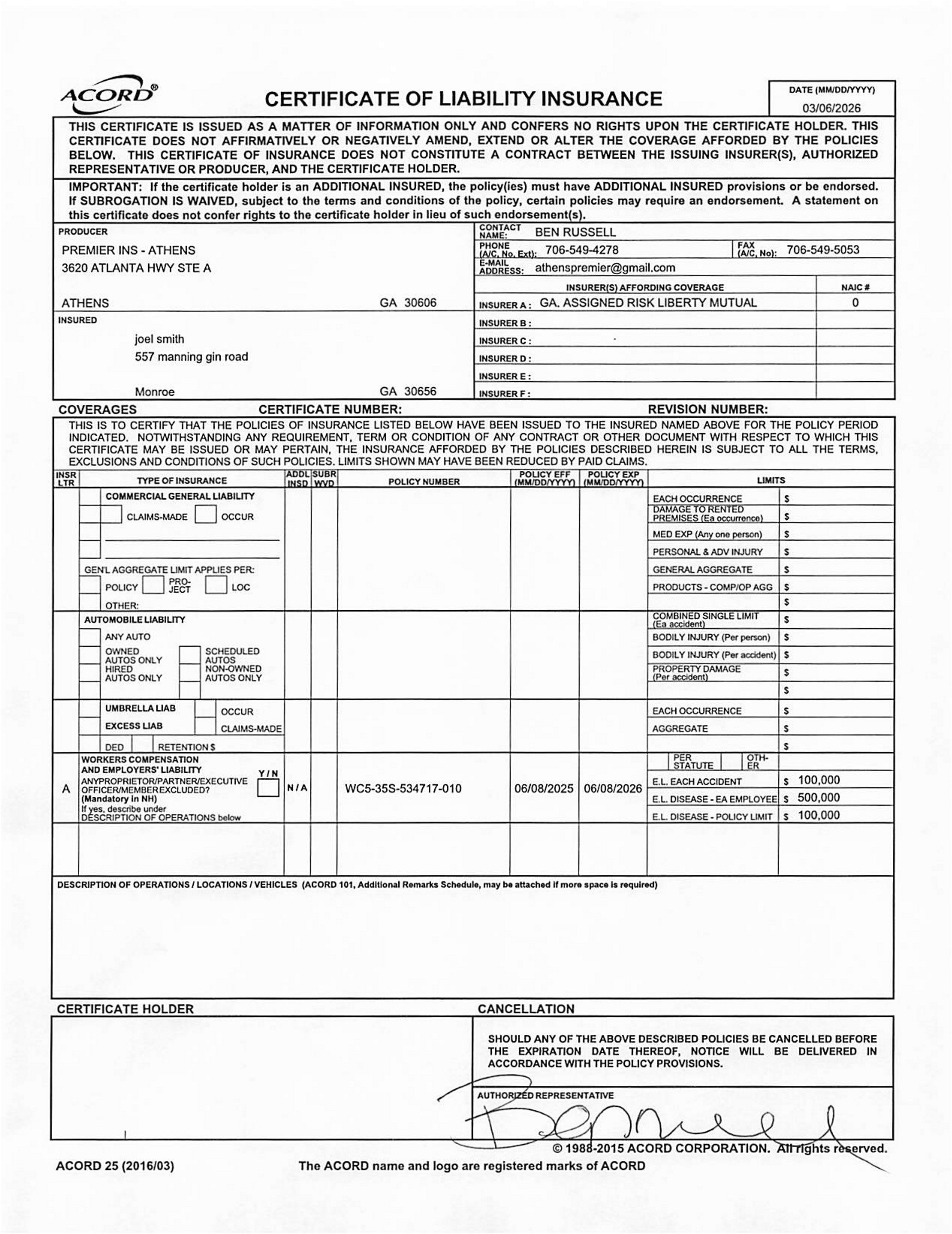
Workers' Compensation Insurance 🔍 View full size
🛡️ Workers' Comp
Workers' Compensation Insurance

Workers' compensation through GA Assigned Risk Liberty Mutual (Policy WC5-35S-534717-010). Coverage 06/08/2025 – 06/08/2026.

BBB A+ Accreditation 🔍 View full size
⭐ A+ Rated 2026
BBB A+ Accreditation

Accredited by the Better Business Bureau with an A+ rating — the highest possible. Valid through September 2026.

GAF ShingleMaster™ Certification 🔍 View full size
🏆 GAF Certified
GAF ShingleMaster™ Certification

Certified GAF ShingleMaster contractor — one of the most coveted designations in roofing.

CertainTeed ShingleMaster™ — Joel Smith 🔍 View full size
🏆 CertainTeed Certified
CertainTeed ShingleMaster™ — Joel Smith

Joel T. Smith is a CertainTeed certified ShingleMaster™ applicator — trained and qualified in advanced roofing installation techniques.

CertainTeed ShingleMaster™ — Syreeta Smith 🔍 View full size
🏆 CertainTeed Certified
CertainTeed ShingleMaster™ — Syreeta Smith

Syreeta Smith is a CertainTeed certified ShingleMaster™ applicator — ensuring every Sycon project meets the highest manufacturer standards.

Satisfaction Guaranteed 🔍 View full size
💯 5-Year Guarantee
Satisfaction Guaranteed

Every job is backed by our 5-year workmanship guarantee. If it's not right, we make it right.

Your Roof Won't
Fix Itself.
Let's Fix It Together.

Get a 100% free, no-pressure estimate from Georgia's most trusted roofing team. Takes 60 seconds to request. We'll call you within 2 hours.